Listing Tools

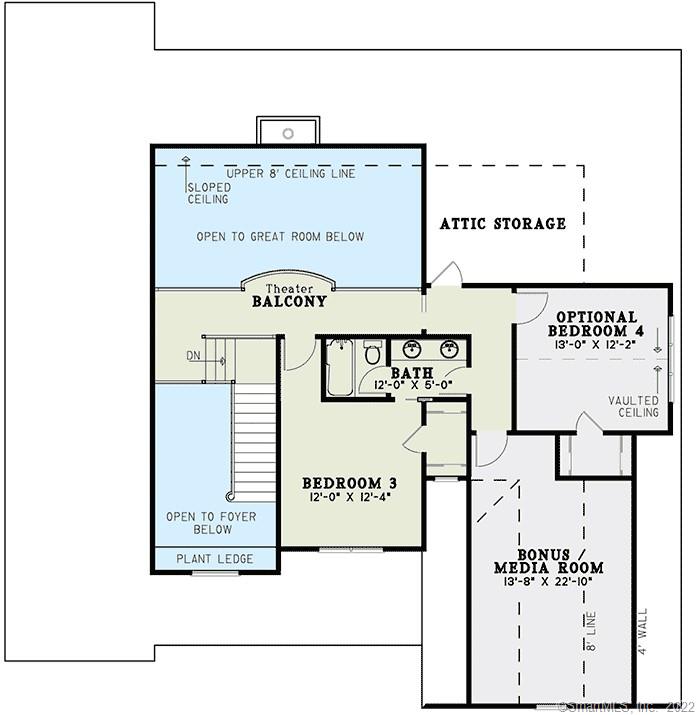
The welcoming Collins Estate has a porch entrance and an exterior with stone and vertical siding that is enhanced with craftsman details. This flexible floor plan offers a grand foyer open to the staircase to the 2nd level. The upper balcony overlooks the kitchen, dining area, and the great room with gas fireplace and 2 sets of French doors that leads to the rear covered porch. First floor primary bedroom is a lavish suite with a stunning bath. The upper level has 2 bedrooms, main bath, and the optional 22.10 x 13.8 bonus room. The Neighborhoods at Edgewater Hill is a unique community with generous allowances for cabinetry, appliances, and lighting. No two homes will be the same as plans are removed once selected. Make your reservation today! To be built similar to subject.

Property Details of 00026 Edgewater Circle

Map Location

Driving Directions

Listed by Joyce M. Covone of Berkshire Hathaway NE Prop. ((860) 608-1708)

The data relating to real estate for sale on this website appears in part through the SmartMLS Internet Data Exchange program, a voluntary cooperative exchange of property listing data between licensed real estate brokerage firms, and is provided by SmartMLS through a licensing agreement. Listing information is from various brokers who participate in the SmartMLS IDX program and not all listings may be visible on the site. The property information being provided on or through the website is for the personal, non-commercial use of consumers and such information may not be used for any purpose other than to identify prospective properties consumers may be interested in purchasing. Some properties which appear for sale on the website may no longer be available because they are for instance, under contract, sold or are no longer being offered for sale. Property information displayed is deemed reliable but is not guaranteed. Copyright 2026 SmartMLS, Inc.

Hi there! How can we help you?

Contact us using the form below or give us a call.

Send Us A Message:

I agree to be contacted by King Team at Home Selling Team via call, email, and text for real estate services. To opt out, you can reply 'stop' at any time or reply 'help' for assistance. You can also click the unsubscribe link in the emails. Message and data rates may apply. Message frequency may vary. Privacy Policy.

Do not fill in this field:

This site is protected by reCAPTCHA and the Google Privacy Policy and Terms of Service apply.