Listing Tools

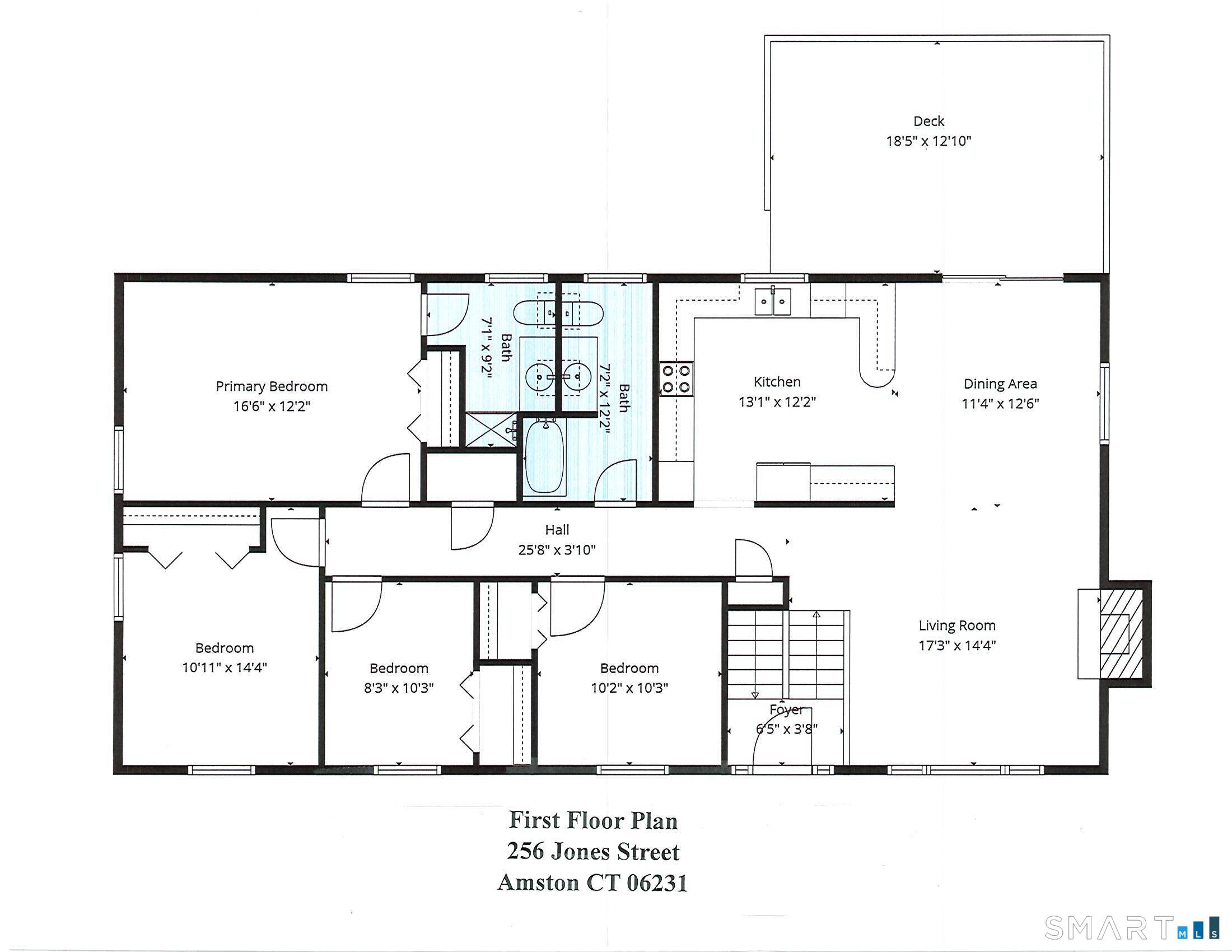
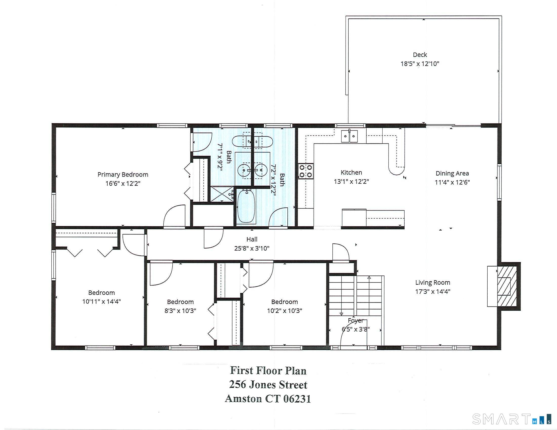
Rural Surroundings with Commuter friendly access to CT RT 2 to Hartford and Norwich/New London Areas offered with this oversized 56' x 28' Bilevel Design home featuring a legitimate four bedroom floor plan on the 1568 SF main living level and being offered with an abutting 2 acre "lot of record" to yield a 4 acre homesite. Open floor plan design Kitchen, Dining Room, and Living Room appointed with hardwood floors, masonry fireplaced Living Room, OH ceiling fan/light, and sliders to 14''x 20' private rear deck. Roomy kitchen with loads of working counter space, peninsula cabinets/serving counter, and work desk area! Four main level bedrooms include Primary BR with full shower stall bath, w/w carpeting, OH ceiling fan/light, and two closets! Three additional Bedrooms with w/w carpeting, 2 with OH fan/lights. All sharing a center hallway full tub/shower bathroom! Lower level offer 390 SF finished 19.6"x 25.4" family room appointed with a raised hearth fieldstone fireplace with wood burning stove insert and an adjoining 1/2 bath! Lower level also has spacious laundry-utility-storage room and 2 car under garage bays! This home needs some updating and is priced with consideration of the cost of improvements to make this country jewel sparkle!

Property Details of 256 & 248 Jones Street, Amston

Map Location

Driving Directions

Listed by James Celio of Century 21 AllPoints Realty ((860) 463-2563)

The data relating to real estate for sale on this website appears in part through the SmartMLS Internet Data Exchange program, a voluntary cooperative exchange of property listing data between licensed real estate brokerage firms, and is provided by SmartMLS through a licensing agreement. Listing information is from various brokers who participate in the SmartMLS IDX program and not all listings may be visible on the site. The property information being provided on or through the website is for the personal, non-commercial use of consumers and such information may not be used for any purpose other than to identify prospective properties consumers may be interested in purchasing. Some properties which appear for sale on the website may no longer be available because they are for instance, under contract, sold or are no longer being offered for sale. Property information displayed is deemed reliable but is not guaranteed. Copyright 2026 SmartMLS, Inc.

Hi there! How can we help you?

Contact us using the form below or give us a call.

Send Us A Message:

I agree to be contacted by King Team at Home Selling Team via call, email, and text for real estate services. To opt out, you can reply 'stop' at any time or reply 'help' for assistance. You can also click the unsubscribe link in the emails. Message and data rates may apply. Message frequency may vary. Privacy Policy.

Do not fill in this field:

This site is protected by reCAPTCHA and the Google Privacy Policy and Terms of Service apply.