Listing Tools

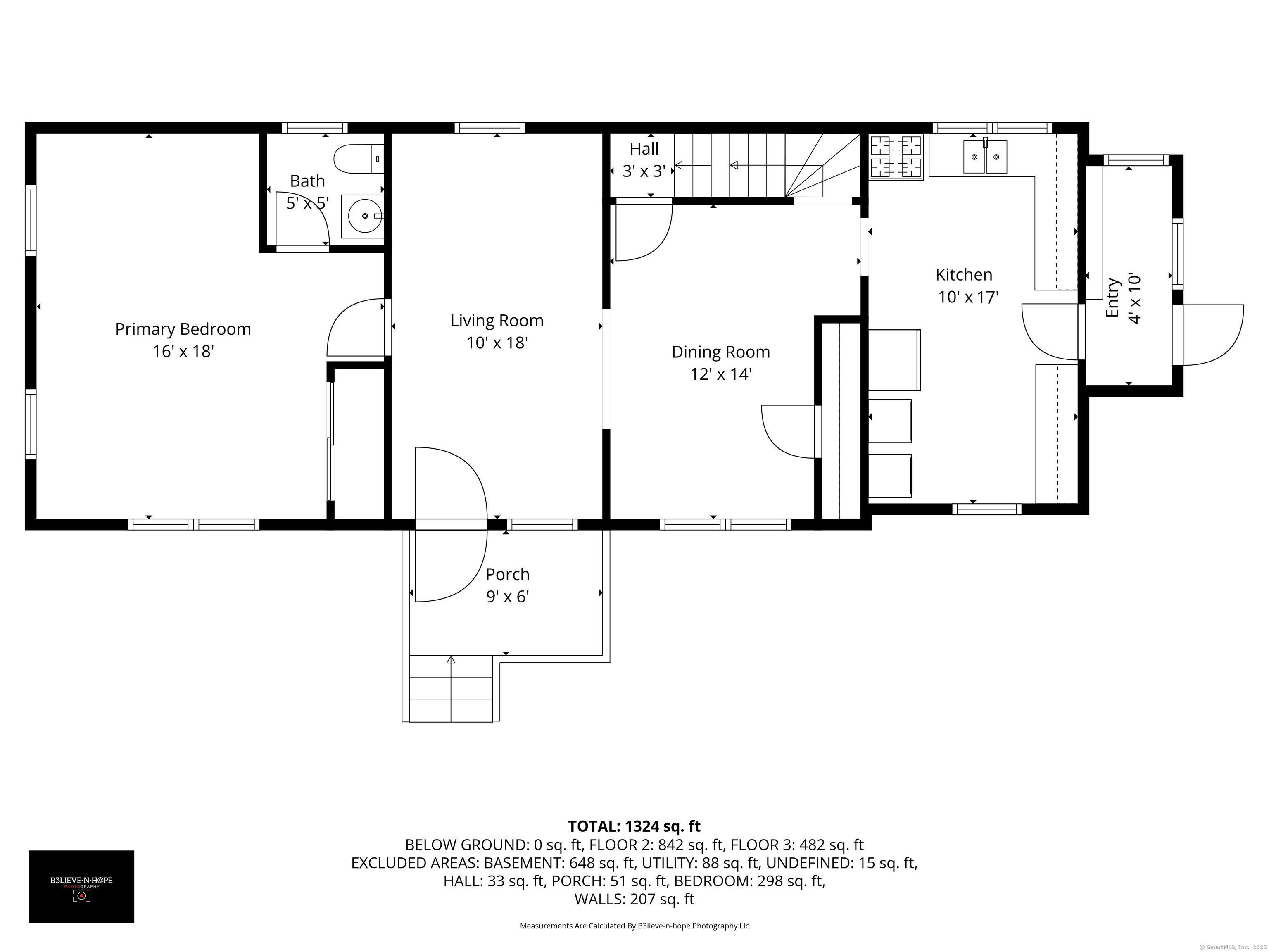
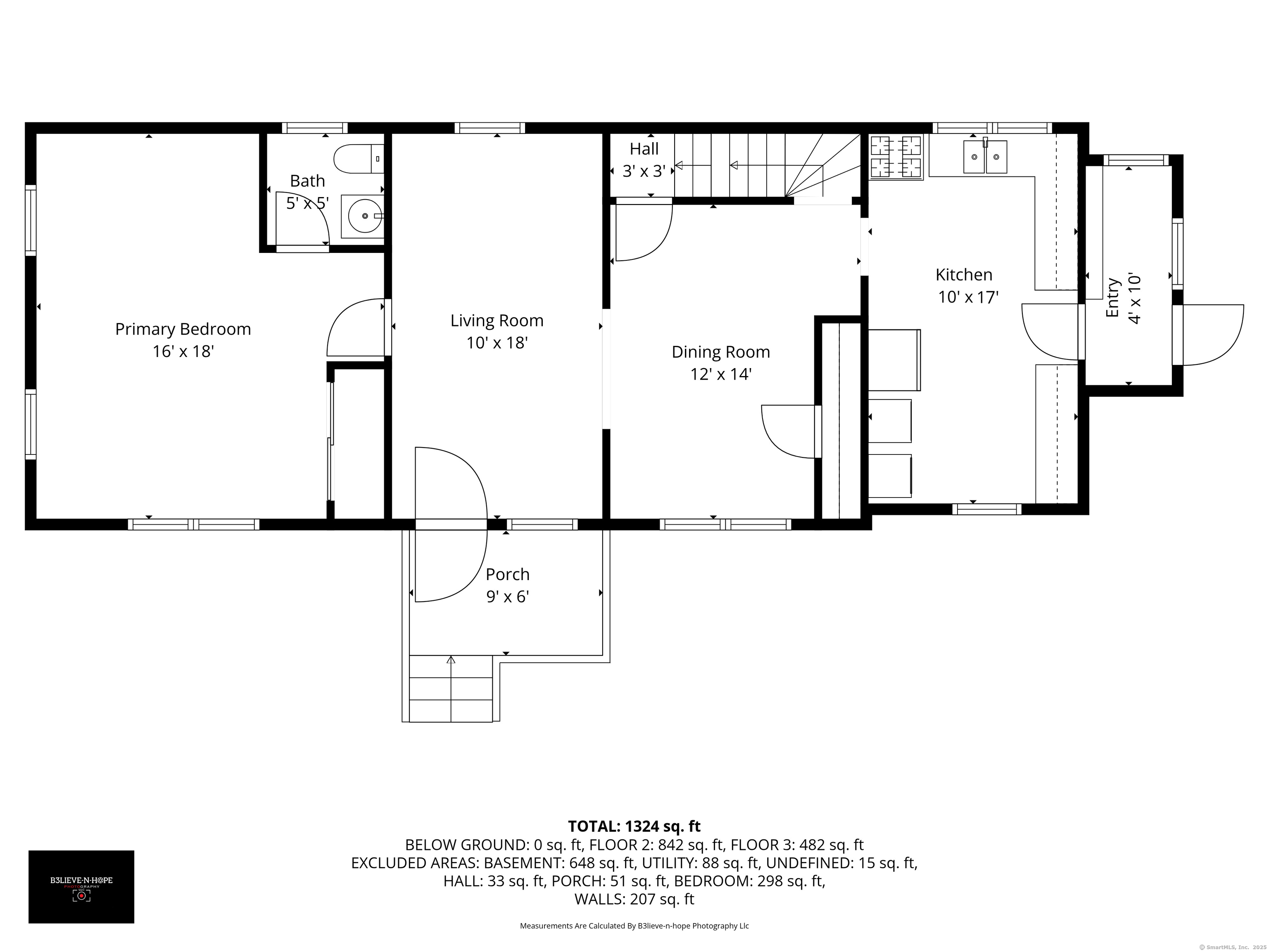
Set on over an acre of land and surrounded by stately maple trees, this charming 1,688 sq.ft. 3/4 bed, 1.1 bath Colonial provides a flexible floor plan that you can adapt to fit your lifestyle. The first floor features a comfortable living room, a dining room, and a kitchen with laundry tucked in for convenience. A side mudroom entrance off the kitchen makes for easy everyday living. The large addition added to the house in 1970 gives you options -- use it as a family room, den or even a first floor primary bedroom with its own half bath. Upstairs you'll find three bedrooms. One of them is actually two connected rooms -- perfect if you'd like a larger primary suite with a sitting area, nursery or office attached. Other home updates include vinyl siding, 2015 furnace, and upgraded electrical. Public sewer. Handy backyard shed for storage. With its mix of classic charm and flexible spaces, this home is ready for you to move in and make it your own. Highest and Best Offers by Friday, OCT 3 at 5pm.

Property Details of 46 Chestnut Hill Road

Map Location

Driving Directions

Listed by Britt Miglietta of Berkshire Hathaway NE Prop. ((860) 965-6428)

The data relating to real estate for sale on this website appears in part through the SmartMLS Internet Data Exchange program, a voluntary cooperative exchange of property listing data between licensed real estate brokerage firms, and is provided by SmartMLS through a licensing agreement. Listing information is from various brokers who participate in the SmartMLS IDX program and not all listings may be visible on the site. The property information being provided on or through the website is for the personal, non-commercial use of consumers and such information may not be used for any purpose other than to identify prospective properties consumers may be interested in purchasing. Some properties which appear for sale on the website may no longer be available because they are for instance, under contract, sold or are no longer being offered for sale. Property information displayed is deemed reliable but is not guaranteed. Copyright 2025 SmartMLS, Inc.

Hi there! How can we help you?

Contact us using the form below or give us a call.

Send Us A Message:

I agree to be contacted by King Team at Home Selling Team via call, email, and text for real estate services. To opt out, you can reply 'stop' at any time or reply 'help' for assistance. You can also click the unsubscribe link in the emails. Message and data rates may apply. Message frequency may vary. Privacy Policy.

Do not fill in this field:

This site is protected by reCAPTCHA and the Google Privacy Policy and Terms of Service apply.