Listing Tools

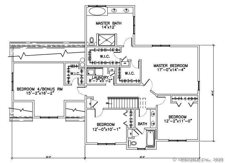
Lake Overlook Estates - an enclave of 12 homesites with stunning seasonal views of Lake Pocotopaug. Spectacular farmhouse plan at Overlook Lake Estates - The Georgetown! This charmer offers an amazing, large, open great room/family room and kitchen and a large dining room off the kitchen surrounded in glass for spectacular views, letting the outside in. You will enjoy a wonderful mudroom and office on the first floor. The upstairs of this abode is stunning with a large walk in laundry room, oversized bedrooms, two huge walk in primary closets and an oversized primary bath. All Yvon Beaudoin Builder, Inc homes come loaded with 9' ceilings, tile or hardwood, large moldings, beautiful raised panel cabinetry, granite throughout, oversized 5' master shower with custom floor to ceiling tiling, gas burning fireplace, pressure treated deck, dining room with tray ceiling, and crown moldings. Fantastic quality standard construction package! All homes come with exterior accents that include board and batten and cultured stone. Public sewer, public water. Choose your prime homesite today. Please do not go onto site. Road is under construction.

Property Details of 16 Freya Lane

Map Location

Driving Directions

Listed by Mark A. Toledo of Berkshire Hathaway NE Prop. ((860) 301-2339)

The data relating to real estate for sale on this website appears in part through the SmartMLS Internet Data Exchange program, a voluntary cooperative exchange of property listing data between licensed real estate brokerage firms, and is provided by SmartMLS through a licensing agreement. Listing information is from various brokers who participate in the SmartMLS IDX program and not all listings may be visible on the site. The property information being provided on or through the website is for the personal, non-commercial use of consumers and such information may not be used for any purpose other than to identify prospective properties consumers may be interested in purchasing. Some properties which appear for sale on the website may no longer be available because they are for instance, under contract, sold or are no longer being offered for sale. Property information displayed is deemed reliable but is not guaranteed. Copyright 2025 SmartMLS, Inc.

Hi there! How can we help you?

Contact us using the form below or give us a call.

Send Us A Message:

I agree to be contacted by King Team at Home Selling Team via call, email, and text for real estate services. To opt out, you can reply 'stop' at any time or reply 'help' for assistance. You can also click the unsubscribe link in the emails. Message and data rates may apply. Message frequency may vary. Privacy Policy.

Do not fill in this field:

This site is protected by reCAPTCHA and the Google Privacy Policy and Terms of Service apply.