Listing Tools

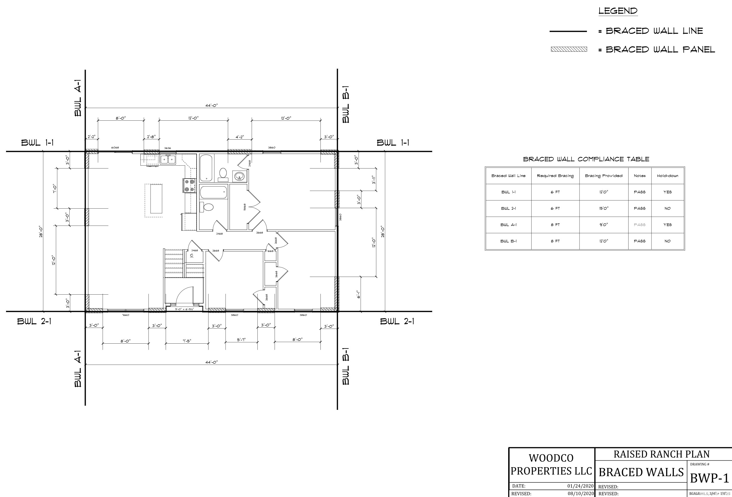
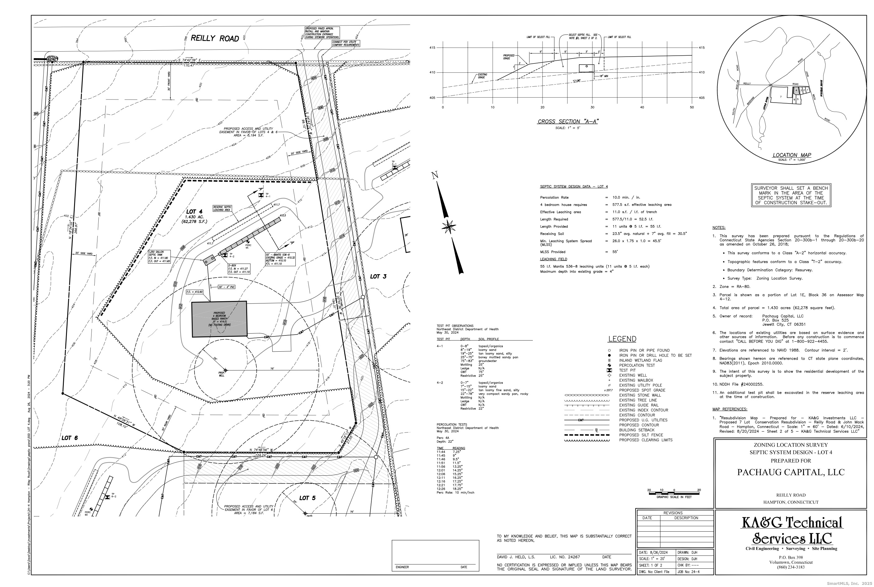
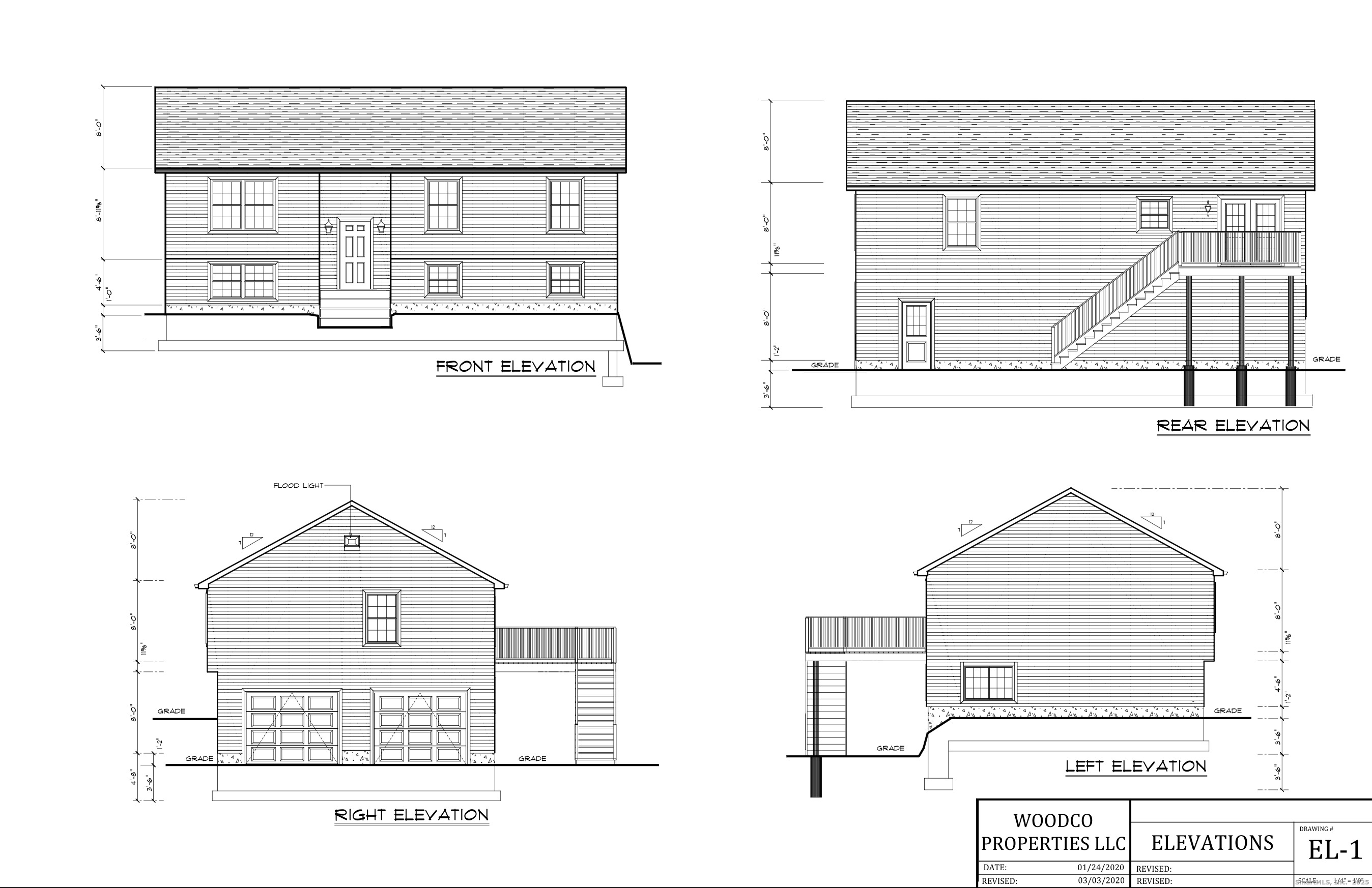
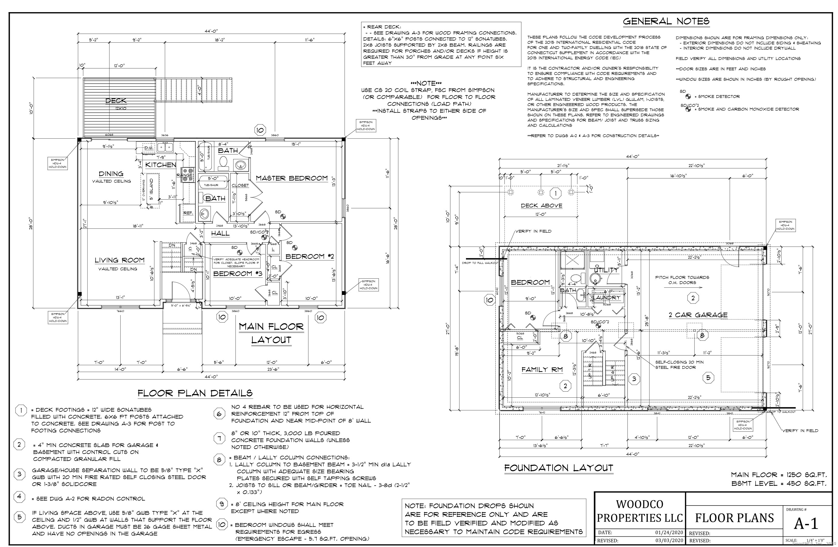
Ready at the end of April! WILL GO ANY FINANCING!! 2026 Raised ranch NEARING COMPLETION! Brand new Stainless appliances in kitchen w/ white shaker cabinets, granite and island. Vaulted ceiling open floor plan great for entertaining. Living room and dining area has slider to deck to enjoy your Fall evenings. Primary bedroom with its own bathroom, walkin closet next to 2 additional bedrooms and full bathroom. Family room in lower walkout level w/ full bathroom and bedroom and laundry hookups. Oversized 2 car garage. ***One year warranty. ***cameras do NOT go on the property without appointment *** THANKYOU

Property Details of 99 Reilly Road

Map Location

Driving Directions

Listed by Christine Johnson of RE/MAX One ((860) 803-5915)

The data relating to real estate for sale on this website appears in part through the SmartMLS Internet Data Exchange program, a voluntary cooperative exchange of property listing data between licensed real estate brokerage firms, and is provided by SmartMLS through a licensing agreement. Listing information is from various brokers who participate in the SmartMLS IDX program and not all listings may be visible on the site. The property information being provided on or through the website is for the personal, non-commercial use of consumers and such information may not be used for any purpose other than to identify prospective properties consumers may be interested in purchasing. Some properties which appear for sale on the website may no longer be available because they are for instance, under contract, sold or are no longer being offered for sale. Property information displayed is deemed reliable but is not guaranteed. Copyright 2026 SmartMLS, Inc.

Hi there! How can we help you?

Contact us using the form below or give us a call.

Send Us A Message:

I agree to be contacted by King Team at Home Selling Team via call, email, and text for real estate services. To opt out, you can reply 'stop' at any time or reply 'help' for assistance. You can also click the unsubscribe link in the emails. Message and data rates may apply. Message frequency may vary. Privacy Policy.

Do not fill in this field:

This site is protected by reCAPTCHA and the Google Privacy Policy and Terms of Service apply.