Listing Tools

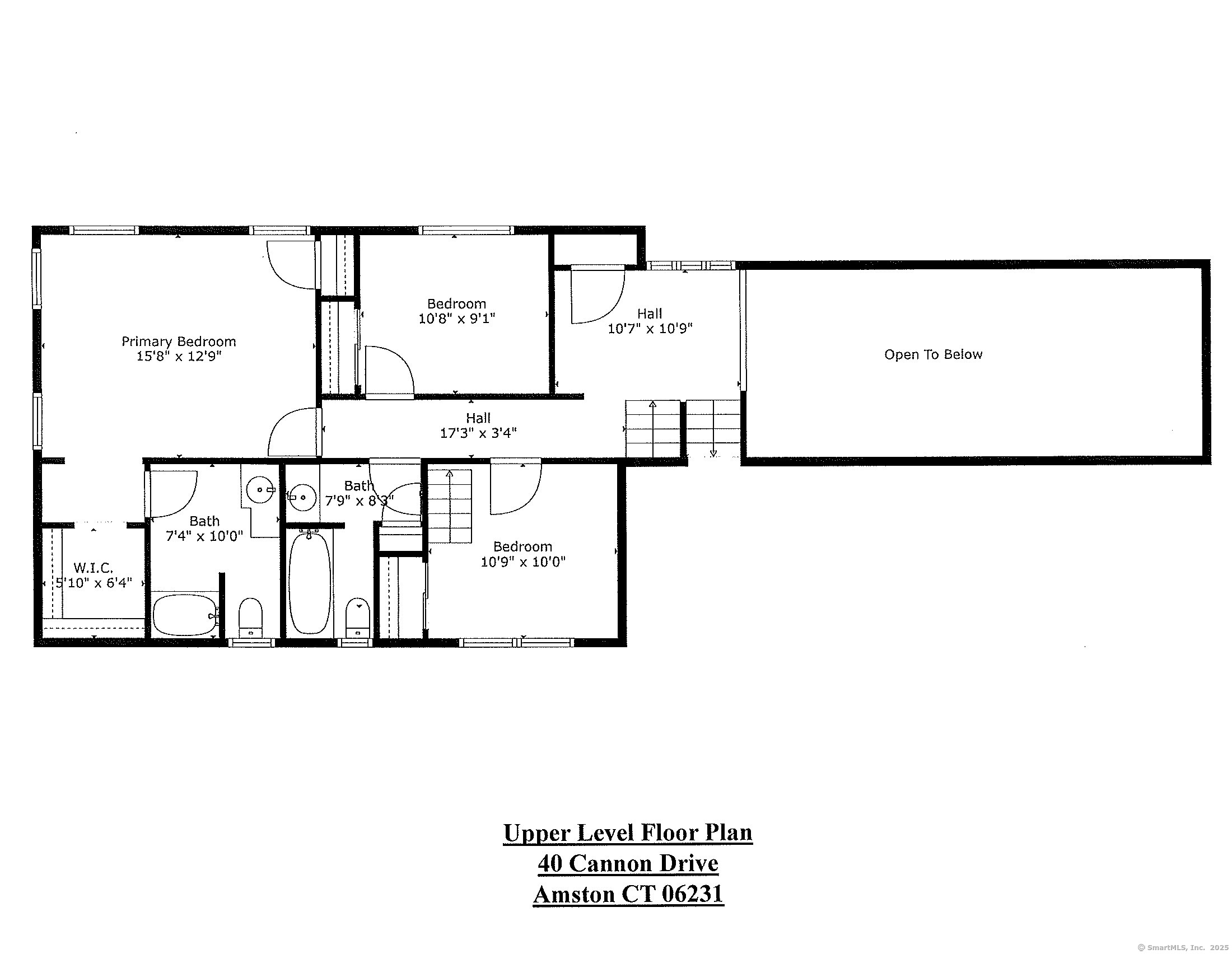
Back on the Market Contemporary Home in Joshua Farms Subdivision set on Private Yet Neighborly 1.46 Acre Lot w/ Landscaped Grounds & Variety of Mature Growth Shade Trees! Open Floor Plan Offering Light, Bright, & Airy Living Space w/Varied Height Interior Ceilings! Kitchen Features Daily Dining Area, White Finished Cabinets, Full Complement of Appliances-PLUS Sliders to Private Rear 22.8"x13.6" Sun Deck! Open L-DR & LR Offers Vaulted 9 Ft.+ Ceilings, Fireplace, & HW Floors! 2nd Level Floor Plan Consists of A Primary Bedroom Suite arranged w/Full Bath, Walk-In Closet as well as Two Additional Bedrooms Plus A Second Full Tub/Shower Bathroom! A Stylish 3rd Level Features a Private Home Office or Study Room w/Vaulted Ceilings, Transom Styled Window Accents, Over-Head Ceiling Fan, & New Carpeting PLUS A Walk-in Attic Storage Area! Finished Lower Level Area offers a Family Room or 2nd Home Office w/Sliders to a Private Ground Level Rear Patio w/An Adjoining Half Bath, & Laundry Room! This Home is Equipped w/High Efficiency Bruderus Oil Fired Boiler, Indirect 40 Gallon Hot Water Heater, Central A/C, 2 Car Garage, Paved Driveway, Generator Ready w/Generator,-Plus a 12'X20' Storage Shed! 22.8" X 13.6" Rear Deck Overlooks Your Very Own & Unique Private Park-Like Get-Away Space! Located Close to Local Shopping and Businesses w/ EZ Commute to Hartford, Manchester, Norwich/New London, and Willimantic Areas!

Property Details of 40 Cannon Drive, Amston

Map Location

Driving Directions

Listed by James Celio of Century 21 AllPoints Realty ((860) 463-2563)

The data relating to real estate for sale on this website appears in part through the SmartMLS Internet Data Exchange program, a voluntary cooperative exchange of property listing data between licensed real estate brokerage firms, and is provided by SmartMLS through a licensing agreement. Listing information is from various brokers who participate in the SmartMLS IDX program and not all listings may be visible on the site. The property information being provided on or through the website is for the personal, non-commercial use of consumers and such information may not be used for any purpose other than to identify prospective properties consumers may be interested in purchasing. Some properties which appear for sale on the website may no longer be available because they are for instance, under contract, sold or are no longer being offered for sale. Property information displayed is deemed reliable but is not guaranteed. Copyright 2025 SmartMLS, Inc.

Hi there! How can we help you?

Contact us using the form below or give us a call.

Send Us A Message:

I agree to be contacted by King Team at Home Selling Team via call, email, and text for real estate services. To opt out, you can reply 'stop' at any time or reply 'help' for assistance. You can also click the unsubscribe link in the emails. Message and data rates may apply. Message frequency may vary. Privacy Policy.

Do not fill in this field:

This site is protected by reCAPTCHA and the Google Privacy Policy and Terms of Service apply.